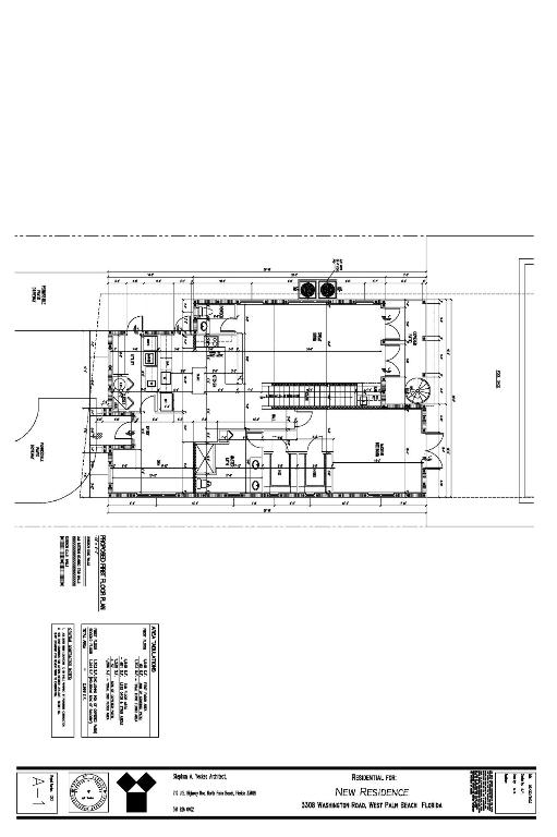
3308 Washington RoadWest Palm Beach, FL 33405




LAND WITH PLANS. Located in the desirable area of Southland Park, is this rare, non-contributing 1920's home for you to take down and then build your very own dream house! Plans are available for a 2 story, 3,000 sq ft home with 4 bedrooms and 4-1/2 baths. Some owner financing may be available.
| 5 months ago | Listing first seen on site | |
| 5 months ago | Listing updated with changes from the MLS® |
All listings featuring the BMLS logo are provided by BeachesMLS, Inc. This information is not verified for authenticity or accuracy and is not guaranteed. Copyright © 2026 BeachesMLS, Inc. (a Flex MLS feed)
Last checked: 2026-02-03 06:57 PM UTC
Or use any of the links below to browse more Pompano Beach Real Estate below:
Pompano Beach Homes For Sale by price
Pompano Beach Condos For Sale by price
Pompano Beach Waterfront Homes For Sale by price
Pompano Beach Waterfront Condos For Sale by price
Pompano Beach Oceanfront Condos For Sale
If you’re in the market for Charlotte Real Estate or Gainesville Real Estate, explore these pages to find your perfect home.
View our other Pompano Beach Realty website.
Did you know? You can invite friends and family to your search. They can join your search, rate and discuss listings with you.